Роскошная вилла 4+1, 240м2 ультра класса на территории крепости Алании
ID: 2069
Цена: 2 475 000
Расположение: Алания, Центр
Площадь:240 м²
Мебель: Нет
Тип недвижимости: Вилла
Комнат: 4+1
До моря: 1000 м
Дата строительства: Январь 2023
Этаж: 2
До центра: 1000 м
Понравился объект?
Описание объекта
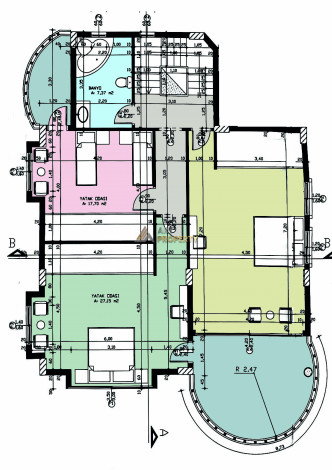
Вилла имеет планировки 4+1 и общую площадь 240м2.
Вилла занимает 2,5 этажа, будет построена с применением новейших технологий с использованием высококачественных материалов.
Продается вилла в полной чистовой отделке, со встроенной корпусной мебелью в зоне кухни и санузлов, а также необходимой сантехникой.
На территории будет зеленый сад с зоной отдыха и барбекю, а также открытый плавательный бассейн и гараж для автомобилей.
На входном этаже здания будут располагаться:
- Фитнес и хамам
- Сауна и парная
- Кухня и зона телевизора
- Кухня и гостиная
- Санузел
- Терраса
- Спальня с личным санузлом
- 2 спальные комнаты
- Санузел
- Терраса
- Санузел и бассейн
- Джакузи
- Минибар
Инфраструктура объекта
Огороженная территория
Спутниковая антенна
Электрогенератор
Видеонаблюдение
Зеленый сад
Крытая парковка
Зона барбекю
Римская парная
Джакузи
Фитнес зал
Лифт
Хамам
Сауна
Открытый бассейн
Условия рассрочки платежа
Рассрочка от застройщика – идеальное решение для тех, кто хочет купить апартаменты на берегу Средиземного моря, но не имеет на руках всей суммы денег.
Оформить рассрочку можно под 0% годовых на весь срок строительства жилого комплекса. Для заключения договора купли-продажи необходимо внести первоначальный взнос в размере 30% от стоимости объекта, а оставшаяся часть оплачивается согласно установленному графику платежей.
Остались вопросы?
Оставьте заявку, наши эксперты свяжутся с Вами в ближайшее время
Похожие объекты

ПОЛУЧИТЬ ИНДИВИДУАЛЬНУЮ ПОДБОРКУ
Для получения подробной информации и актуальных предложений заполните форму и наш менеджер свяжется с вами
Перезвоните мне
Оставьте Ваши контактные данные и наш менеджер свяжется с Вами в ближайшее время.
Спасибо за заявку
C Вами свяжутся в ближайшее время
Запросить данные
Оставьте Ваши контактные данные и наш менеджер свяжется с Вами в ближайшее время.
Запросить план оплаты
Оставьте Ваши контактные данные и наш менеджер свяжется с Вами в ближайшее время.