Проект в близи моря в районе Каргыджак, 61 м2!
ID: 0559
Цена: 132 000
Расположение: Алания, Каргыджак
Площадь:61-102 м²
Мебель: Нет
Тип недвижимости: Квартира
Комнат: 1+1
До моря: 350 м
Дата строительства: Январь 2022
Этаж: 3
До центра: 900 м
Понравился объект?
Описание объекта
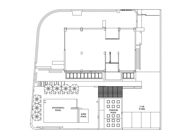
Представляем вашему вниманию проект, который находится на этапе котлована в районе Каргыджак, Алания. Строительство стартовало в октябре 2021 года и будет закончено в марте 2023. Общая площадь участка земли 1.340 м2, на которой будет расположен один блок, бассейн, зеленый сад с фруктовыми деревьями и парковка. На первом этаже дома будет крытый бассейн, сауна и тренажерный зал.
Все квартиры будут сдаваться с готовым ремонтом, на полах будет гранитная плитка, в спальных комнатах – ламинат, стены окрашены водостойкой краской, укомплектованы санузлы, где будет установлен проточный водонагреватель, в зоне кухни будут установлены кухонные шкафы, высота потолков будет составлять 3 метра. Дизайн квартиры будет оформлен в светло- серых тонах.
На продажу представлены квартиры от инвестора планировки 1+1 общей площадью 61 м2 на 3 этаже.
Инфраструктура объекта
Огороженная территория
Спутниковая антенна
Парковка для велосипедов
Смотритель
Видеонаблюдение
Управляющий
Зеленый сад
Открытая парковка
Беседки для отдыха
Зона барбекю
Настольный теннис
Фитнес зал
Лифт
Сауна
Крытый подогреваемый бассейн
Открытый бассейн
Условия рассрочки платежа
Рассрочка от застройщика – идеальное решение для тех, кто хочет купить апартаменты на берегу Средиземного моря, но не имеет на руках всей суммы денег.
Оформить рассрочку можно под 0% годовых на весь срок строительства жилого комплекса. Для заключения договора купли-продажи необходимо внести первоначальный взнос в размере 30% от стоимости объекта, а оставшаяся часть оплачивается согласно установленному графику платежей.
Остались вопросы?
Оставьте заявку, наши эксперты свяжутся с Вами в ближайшее время
Похожие объекты

ПОЛУЧИТЬ ИНДИВИДУАЛЬНУЮ ПОДБОРКУ
Для получения подробной информации и актуальных предложений заполните форму и наш менеджер свяжется с вами
Перезвоните мне
Оставьте Ваши контактные данные и наш менеджер свяжется с Вами в ближайшее время.
Спасибо за заявку
C Вами свяжутся в ближайшее время
Запросить данные
Оставьте Ваши контактные данные и наш менеджер свяжется с Вами в ближайшее время.
Запросить план оплаты
Оставьте Ваши контактные данные и наш менеджер свяжется с Вами в ближайшее время.