Интересный инвестиционный проект в центре Алании в 400 метрах от пляжа Клеопатры, 70-138м2
ID: 0100
Цена: 179 000
Расположение: Алания, Центр
Площадь:70-138 м²
Мебель: Нет
Тип недвижимости: Квартира
Комнат: 3+1
До моря: 400 м
Дата строительства: Январь 2022
Этаж: 5
До центра: 50 м
Понравился объект?
Описание объекта
Проект будет состоять из одного блока в 31 квартиру, которые будут сданы в чистовой отделке, с встроенным кухонным гарнитуром и укомплектованными ванными комнатами. У каждой квартиры будет своя кладовая для хранения личных предметов.
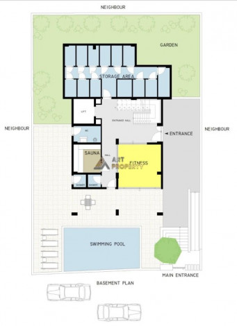
На территории комплекса для удобства жителей будет располагаться открытый плавательный бассейн, фитнес зал, сауна и электрогенератор.
К продаже доступны апартаменты следующих планировок:
3+1 площадью 142 м2.
Строительство началось в феврале 2021 года, сдача в эксплуатацию запланирована на февраль 2022 года.
До конца строительства можно воспользоваться беспроцентной рассрочкой при первоначальном взносе 40% от стоимости квартиры.
Для получения более подробной информации, пожалуйста, обращайтесь к нашим менеджерам.
Инфраструктура объекта
Огороженная территория
Электрогенератор
Смотритель
Фитнес зал
Сауна
Открытый бассейн
Условия рассрочки платежа
Рассрочка от застройщика – идеальное решение для тех, кто хочет купить апартаменты на берегу Средиземного моря, но не имеет на руках всей суммы денег.
Оформить рассрочку можно под 0% годовых на весь срок строительства жилого комплекса. Для заключения договора купли-продажи необходимо внести первоначальный взнос в размере 30% от стоимости объекта, а оставшаяся часть оплачивается согласно установленному графику платежей.
Остались вопросы?
Оставьте заявку, наши эксперты свяжутся с Вами в ближайшее время
Похожие объекты
ПОЛУЧИТЬ ИНДИВИДУАЛЬНУЮ ПОДБОРКУ
Для получения подробной информации и актуальных предложений заполните форму и наш менеджер свяжется с вами
Перезвоните мне
Оставьте Ваши контактные данные и наш менеджер свяжется с Вами в ближайшее время.
Спасибо за заявку
C Вами свяжутся в ближайшее время
Запросить данные
Оставьте Ваши контактные данные и наш менеджер свяжется с Вами в ближайшее время.
Запросить план оплаты
Оставьте Ваши контактные данные и наш менеджер свяжется с Вами в ближайшее время.